Wohnung 53 m², Umag, 800 m vom Meer und vom Stadtzentrum entfernt

Wohnung 53 m², Umag, 800 m vom Meer und vom Stadtzentrum entfernt

215 000 €
Kontakt
Direkter Kontakt für diese Anzeige
Wohnungsart
In einem Wohngebäude
Standort
Istarska, Umag
Wohnfläche
53 m²
Baujahr
2025
Separate Schlafzimmer
1
Parkplätze
2
Šifra objekta
720

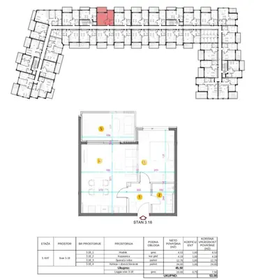
Zum Verkauf steht eine Wohnung im dritten Stock eines hochwertigen Neubaus in Umag mit einer Nettonutzfläche von 53 m².

Sie besteht aus:

  • Wohnzimmer und Küche
  • Schlafzimmer
  • Bad
  • Loggia

Zur Wohnung gehören ein Abstellraum von 3,75 m², ein Garagenstellplatz und ein Außenstellplatz.

Das Wohngebäude ist vollständig als Stahlbeton-Monolithkonstruktion mit Zwischendeckenplatten geplant. Die Trennwände innerhalb der Wohnungen werden aus doppelt starken Gipskartonverkleidungen mit zusätzlicher Wärme- und Schalldämmung ausgeführt. Die Fassadenverkleidung ist als ETICS-System mit 10 cm starker Wärmedämmung ausgeführt. Die äußeren Fassadenöffnungen sind mit hochwertiger Mehrkammer-PVC-Anthrazitfenstertechnik der neuesten Generation verschlossen. In den Schlafzimmern sind elektrisch betriebene Rollläden vorhanden. Alle Wohnungen sind mit hochwertigen Multisplit-Heiz- und Kühlsystemen ausgestattet, deren Betriebseigenschaften maximalen Komfort und Wirtschaftlichkeit gewährleisten.

Jede Wohnung wird mit einem eigenen Wasser- und Stromzähler ausgestattet. Die Warmwasserbereitung erfolgt über einen stromsparenden Elektroboiler. Alle Wohnungen verfügen über einen Telefon-, Antennen-, TV- und Internetanschluss, und für jede Wohnung wird eine Gegensprechanlage mit Video-Gegensprechanlage installiert. In den Zimmern und im Wohnzimmer wird Parkett verlegt, während in den Fluren und Vorzimmern Fliesen verlegt werden. Hochwertigste Materialien und die eingebaute Ausstattung machen jede Wohnung äußerst angenehm zum Wohnen, aber auch zur Vermietung für touristische Zwecke.

Die Fertigstellung der Bauarbeiten ist für Juli 2025 geplant. Die Wohnung befindet sich 800 m vom Meer und vom Stadtzentrum von Umag entfernt.

Karte ist indikativ; der genaue Standort kann abweichen.

Zusätzliche Informationen

Anzeigendaten
Eingestellt am: 29.03.2026. Zuletzt aktualisiert: 08.04.2026.
Parken
Garage Garagenstellplatz Außenstellplatz
Status
Neubau
Nebenräume
Abstellraum / Schuppen
Außenbereiche
Loggia
Lifestyle
Klimaanlage
Sicherheit
Gegensprechanlage
Stockwerke
3 Gesamtstockwerke: 3
Sanitär
1 x Badezimmer