Zagreb, Kustošija centar, dvosoban stan, 65 m² + loggia

Zagreb, Kustošija centar, dvosoban stan, 65 m² + loggia

650 €
Kontakt
Direktni kontakt za ovaj oglas
Kategorija
Tip stana
U stambenoj zgradi
Lokacija
Grad Zagreb, Črnomerec, Kustošija
Orijentacija
Istok
Stambena površina
65 m²
Godina renovacije
2019
Odvojenih spavaćih soba
1
Šifra objekta
10341-1

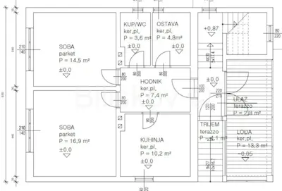
Iznajmljuje se lijepo uređen i ugodan stan od 80 m² u Zagrebu, Črnomercu, Kustošija centar, u Duvanjskoj ulici. Stambeni dio iznosi 65 m², a loggia 15 m².

Stan se nalazi u visokom prizemlju i sastoji se od:

  • kuhinje i blagovaone cca 11 m²
  • spavaće sobe cca 15 m²
  • dnevnog boravka cca 15 m²
  • hodnika
  • kupaone
  • ostave
  • prostrane natkrivene terase cca 15 m²

Stan ima odvojen ulaz. Potpuno je opremljen i sadrži klima uređaj, prelicu suđa, perilicu odjeće i internet. Moguć je i korištenje vrta, roštilja te spremišta u podrumu.

Idealan je za dvije osobe i useljiv od 01.06.2026. Stan je adaptiran i uređen 2019. godine.

Parking je na ulici u zoni bez naplate. Ljetno-proljetne režije iznose oko 130 € , a zimsko-jesenske oko 200 €.

Udaljenost od autobusne stanice na Ilici je 2 min hoda, a od okretišta tramvaja Črnomerec 8 min hoda. U blizini su Pliva i Tekstilno-tehnološki fakultet.

  • Najamnina: 650 € / mjesec + režije
  • Obavezan polog: u visini mjesečne najamnine
  • Više informacija na mob: 098 411 775
Prikaz je orijentacijski; točna lokacija može biti približna.

Dodatne informacije

Podaci o oglasu
Oglas predan: 09.04.2026. Zadnja izmjena: 30.04.2026.
Parking
Javni besplatan
Prostori
Spremište / Šupa
Vanjski prostori
Lođa Terasa Vrt / dvorište Roštilj
Lifestyle
Perilica suđa Namješteno Klima uređaj
Sanitarije
1 x kupaonica