Prodaja - građevinsko zemljište s dozvolom, gradnja može početi odmah! Kanfanar!

Prodaja - građevinsko zemljište s dozvolom, gradnja može početi odmah! Kanfanar!

135 000 €
Kontakt
Direktni kontakt za ovaj oglas
Lokacija
Istarska, Kanfanar
Površina parcele
727 m²
Šifra objekta
25166

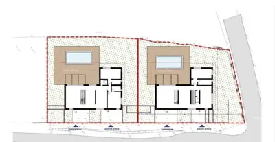
Na prodaju je građevinsko zemljište s građevinskom dozvolom u Kanfanaru, smješteno na mirnom rubnom dijelu mjesta, na samom kraju građevinske zone.

Parcela ima pristup s asfaltirane ceste, ravnog je terena i idealna je za gradnju. Udaljena je svega 3 km od izlaza s autoceste za Rovinj, a zbog svoje izvrsne geografske pozicije sve destinacije u Istri – od sjevera do juga poluotoka – dostupne su unutar 40 minuta vožnje.

Za parcelu je izrađena projektna dokumentacija za izgradnju vile s bazenom, a građevinska dozvola je već izdana, što omogućuje trenutni početak gradnje.

Postoji mogućnost kupnje i dodatne parcele koja se nalazi pored ove parcele.

Prikaz je orijentacijski; točna lokacija može biti približna.

Dodatne informacije

Podaci o oglasu
Oglas predan: 19.03.2026. Zadnja izmjena: 15.04.2026.
Zemljište
Građevinsko