Apartment for sale in Centar, 105 m²

Apartment for sale in Centar, 105 m²

378 000 €
Contact
Direct contact for this listing
Apartment type
In an apartment building
Location
Zagrebačka, Velika Gorica, Centar
Street
Velika Gorica - centar
Living area
105 m²
Energy certificate
A+
Year built
2024
Separate bedrooms
4
Parking spaces
1
Šifra objekta
I30608

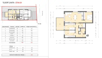
A four-room apartment S4 with an area of 91,51 m² is for sale in a new development in the very heart of the old center of Velika Gorica.

The apartment is located in an excellent urban villa of very high-quality construction with only four apartments and is ready for immediate occupancy.

  • Equipment: aluminum profiles, electric roller shutter lifts, heat pump, underfloor heating, high-quality ceramics
  • Included in the price: storage room, garage parking space and garden
  • Additional: the purchase of one more garage parking space is possible
Map is indicative; exact location may be approximate.

Additional information

Listing data
Listed on: 27.04.2026. Last updated: 28.04.2026.
Parking
Garage Outdoor parking spot
Status
New build
Storage spaces
Storage room / shed
Outdoor spaces
Balcony Yard / garden
Floors
2 Total floors: 2