Zakup, Zagreb, D.grad, Trg bana J.Jelačića, p.prostor, 110 m², u potkrovlju

Zakup, Zagreb, D.grad, Trg bana J.Jelačića, p.prostor, 110 m², u potkrovlju

1 540 €
Kontakt
Direktni kontakt za ovaj oglas
Lokacija
Grad Zagreb, Donji Grad
Orijentacija
Istok
Stambena površina
110 m²
Šifra objekta
14618-1

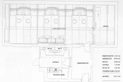
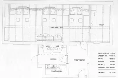
Lijep poslovni prostor površine 110,11 m² u potkrovlju zgrade na Donjem gradu, Trgu bana Josipa Jelačića, dostupan je za zakup.

Prostor se sastoji od predprostora, uredskog dijela površine 67 m², arhive, tehničke sobe, kuhinje te muškog i ženskog WC-a. Oprema i završna obrada prostorija u potpunosti su suvremeni, uz očuvanje duha originalnog prostora. Temeljitom rekonstrukcijom objektu je vraćen izvorni prostorni i oblikovni dignitet. Obnovljena je bogata plastika objekta, stilski detalji bravarije i stolarije, originalni vitraji, stropne štukature i kaljeve peći.

Zgrada je centralno postavljena na glavnom gradskom trgu. U središtu je trgovačkih, ugostiteljskih i servisnih sadržaja. Ima pogled na cijeli Trg bana Josipa Jelačića i srednjovjekovni dio Grada. Izvrsno je prometno povezana javnim prometom (tramvaj, autobus, taksi), uz javna parkirališta i garaže u neposrednoj blizini.

Poslovni prostor je dostupan od 1.10.2024.

Od 1.12.2024. godine se, uz ovaj poslovni prostor, iznajmljuju i poslovni prostori na 2. katu površine 341 m² i na 3. katu površine 320 m², po cijeni od 20 €/m² + PDV.

  • Orijentacija: Sjever - Jug
  • Grijanje: Centralno etažno plinsko
  • Cijena zakupa potkrovlja: 14 €/m² + PDV + režijski troškovi
  • Minimalni rok zakupa: dvije godine
  • Minimalni polog: 3 brutto mjesečna zakupa
  • Posrednička naknada: 1 mjesečna zakupnina + PDV
Prikaz je orijentacijski; točna lokacija može biti približna.

Dodatne informacije

Podaci o oglasu
Oglas predan: 19.03.2026. Zadnja izmjena: 28.04.2026.
Parking
Garaža Garažno mjesto
Lifestyle
Klima uređaj
Sanitarije
2 x odvojeni WC